Opgeleverd Den Haag

Ahi Evran

Intro

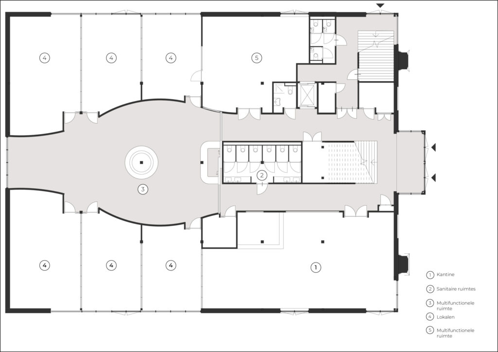
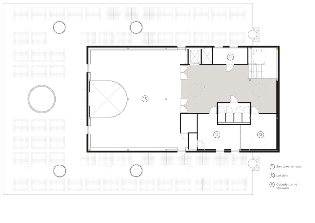
Bij het ontwerpen van dit gebouw lag de focus op een veelzijdige architectuur opgave die identiteit, flexibiliteit en duurzaamheid integreerde. Het gebouw moest niet alleen een tastbare uitdrukking zijn van de gemeenschap die het zou bedienen, maar ook de mogelijkheid bieden om zich aan te passen aan veranderende behoeften en functies in de toekomst. Daarnaast stond duurzaamheid centraal, met aandacht voor energie-efficiëntie, materialen en een gezonde leefomgeving. Om het gebouw stevig te verankeren in de omgeving, werd er zorgvuldig gekeken naar de contextuele aspecten en lokale architectonische kenmerken. Het creëren van een groene ontmoeting omgeving rondom het gebouw was van groot belang om een harmonieuze relatie met de natuur te bevorderen en een uitnodigende ruimte te bieden voor sociale interactie en gemeenschapsactiviteiten.

  • Locatie

    Den Haag

  • Programma

    Maatschappelijk

  • Status

    Opgeleverd

  • Periode

    2018

Beelden

Een vergelijkbaar project op het bord?